Georgian Country House For Sale in Co. Donegal

Ballyarr House
Ramelton
Co. Donegal
F92 H4X8
A Georgian country house from 1780 set on about 11.8 acres of mature parkland on the banks of the River Lennon.
Price: €925,000
Agent: Savills
Contact: Liam McCarthy
Phone: +353 (0)1 618 1300
Email: [email protected]
– A Georgian Country House dating from 1780
– Courtyard with outbuildings
– River frontage with fishing rights onto the River Lennon
– 4 bedrooms and 3 reception rooms
– Walled garden
Ballyarr House
Ballyarr House is an elegant late-Georgian country residence of distinction, set on about 11.8 acres of mature parkland on the banks of the River Lennon. Approached by a tree-lined avenue, the property offers exceptional privacy and sweeping views across its own grounds, all while remaining within easy reach of nearby towns.
Architecturally notable for its triple gable-fronted façade, the house has been sensitively restored to celebrate its 18th-century character. Original sash windows with timber shutters, decorative cornicing, and a suite of period marble and slate fireplaces are complemented by seagrass flooring to principal rooms and bespoke radiator cabinetry heritage detail paired with everyday comfort. Modern amenities are discreetly integrated, including oil-fired central heating, solar hot water and two solid-fuel stoves.
The reception hall leads to a gracious, double-aspect drawing room and an impressive study/library, both running the depth of the house to capture natural light and pastoral outlooks. A formal dining room and long conservatory add versatile living and entertaining space, while the kitchen/breakfast room with a Belfast sink, Welsh dressers and glazed doors to the garden. A cloakroom/WC completes the ground floor.
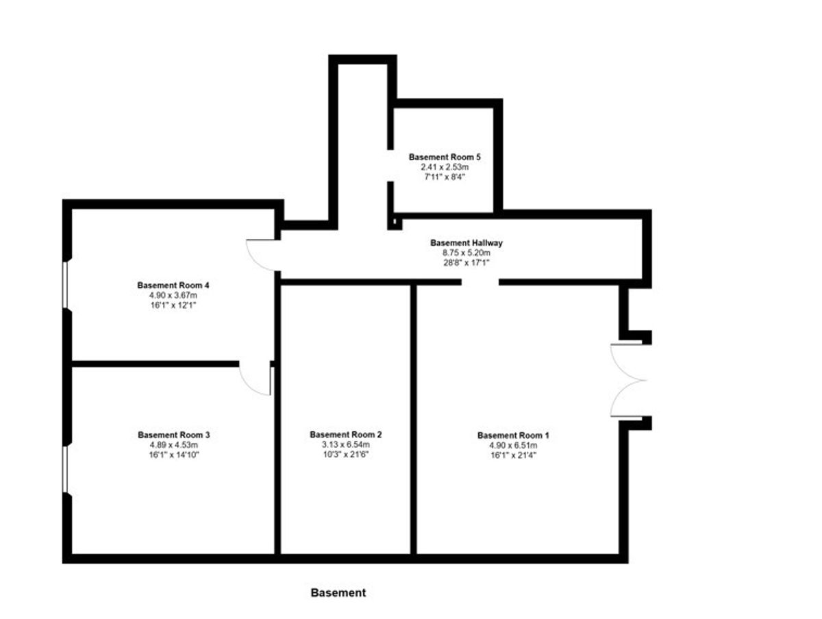
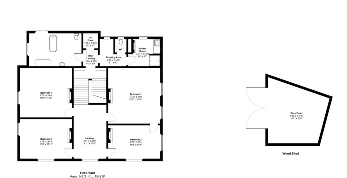
Upstairs, four well-proportioned bedrooms are served by two bathrooms, including a dual-aspect main bathroom with roll-top bath and brassware. A mezzanine landing provides fitted bookshelves, hot press, ironing area and an additional cloakroom/WC with loft access. Beneath the house, a full-footprint cellar which is accessed both internally and externally offers excellent storage and conversion potential (wine cellar, gym, cinema or hobbies), retaining original flooring and refurbished ceilings.
Outbuildings
Practical outbuildings include a workshop with adjoining boiler room, a log store, and a modern garage on the lane large enough for two cars and garden machinery. The house is a listed building, with many original features retained.
Gardens and Grounds
The grounds are a defining feature and include sweeping lawns framed by mature trees, a beautiful walled garden enclosed by about 8 foot locally sourced stone and approached through timber double doors. Alongside this is a water meadow that encircles a ring of ancient trees known as the Fairy Fort (referenced in Native Woodlands of County Donegal). Under a Forestry scheme, approx. 5,000 native deciduous trees have been planted, enriching biodiversity and seasonal interest. The holding is bordered by woodland and the River Lennon, with fishing rights enhancing the amenity.
Local Information
Ballyarr House sits just outside Ramelton, a handsome heritage town where the River Lennon meets Lough Swilly, offering rural calm with amenities close by. Ramelton’s cafés, weekly country market and riverside walks are about 3 km, while Letterkenny, the county’s main centre for retail, schools, sport and healthcare (including Letterkenny University Hospital) is about 10 km distant.
For coastline and beaches, Rathmullan is about 12 km with a long sandy strand, pier and slipway on Lough Swilly. Beyond, the Fanad Peninsula opens to quiet coves and headlands, Portsalon and the celebrated Ballymastocker Bay are about 27 km with Fanad Head Lighthouse about 40 km distant.
Closer to home are several less-discovered gems. Ards Forest Park is about 18 km, Doe Castle is about 20 km. Marble Hill Beach and Dunfanaghy are about 25 km. Inland, Glenveagh National Park and the Derryveagh Mountains are about 30 km, with Errigal at about 35 km.
Golf is first-rate with Portsalon Golf Club is about 27 km, Rosapenna Golf Resort about 30 km and Dunfanaghy Golf Club which is about 25 km. Sailing, sea angling and kayaking are widely available on Lough Swilly and Mulroy Bay.
Connectivity is straightforward for a coastal country house. City of Derry Airport is about 55 km, Donegal Airport (Carrickfinn) about 55 km. Derry City is about 50 km, Belfast International Airport about 130 km and and Dublin Airport about 240 km.
History
Constructed circa 1780, Ballyarr House is recorded by the National Inventory of Architectural Heritage for its distinctive triple gable-fronted composition, an uncommon flourish within Irish Georgian architecture. In 1842, the estate was acquired and remodelled by Lord George Hill, a prominent figure in Donegal’s 19th century development. Associated with projects such as Bunbeg harbour and the former Gweedore Hotel (now An Chuirt), Hill welcomed numerous notable visitors to Ballyarr, including two viceroys and the historian Thomas Carlyle, who described the house as a farm-like place enhanced by a fashionable Italian-style piazza.
Hill’s personal story entwines Ballyarr with literary heritage: in 1834 he married Cassandra Knight, niece of Jane Austen; after her death he married her sister Louisa, and following his own death in 1879, a third sister, Marianne, joined the household. Louisa and Marianne are interred at nearby Tully graveyard. The Austen connection is explored in May, Lou and Cass: Jane Austen’s Nieces in Ireland (Sophia Hillan, 2011), while Hill’s life is chronicled in The Peer, the Priests and the Press (Roy Greenslade, 2023).
Subsequent custodians have cared for the house across the centuries. Ballyarr passed to Arthur Hill, and in 1900 to William Russell, together with the adjacent flour mill. The Russell family retained the estate until 1974, when it was purchased by Ian Smith, a former hotelier and British war hero, and his wife Peggy, an artist marking the beginning of the modern restoration. Although one wing was demolished, its curved window was salvaged and re-used in The House on the Brae in Ramelton. In 1981, the house was acquired by Andy and Breda O’Loghlin, and in 1989 by Roy and Noreen Greenslade, who undertook extensive works to reinstate original room proportions, install period fireplaces, restore ornate plasterwork, and strip stucco from the front elevation to reveal the original stone façade returning the house to its authentic Georgian character.
BER Details
Exempt





























